Комплект фурнітури Vertico Synchro, накладне навішування, 350 – 400 мм, довжина 2500 мм (20384)
Під замовлення
12 831.03 грн./к-т
Немає в наявності
Знайшли дешевше?
-
+
В кошик
Купити в 1 клік
Доставка по всій Україні транспортними компаніями Нова Пошта, SAT, Делівері.
Потрібна допомога з підбором?
Допоможемо підібрати правильну фурнітуру під ваш проєкт.
Зателефонувати TelegramОпис
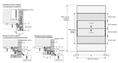
- Комплект містить усі необхідні елементи для двох синхронних розсувних дерев'яних дверей або дверей з алюмінієвою рамою
- Комплект містить ходовий профіль 1200–2500 мм
- Увага: верхні двері діють як противага нижніх дверей. Вага дверей має бути однаковою
- 2 ходові профілі з встановленими ходовими елементами
- 16 пластин, що пригвинчуються
- Кріплення
Примітки:
- Декоративні профілі для ходових профілів замовляються окремо
Інструкція з монтажу та технічна інформація
Каталог VerticoSynchro
1,7мб
Монтаж VerticoSynchro
552кб
Характеристики
Відгуки






