Комплект фурнітури Wing 77 для шафи з двома створками (70986)
Купити набір
Комплект фурнітури Wing 77 для шафи з двома створками (70986)
6 012.39 грн. * 1 шт
6 012.39 грн. * 1 шт
|
Верхній ходовий профіль Wing 77, L3200 мм, алюміній, анодований (9193574) | 3 540.93 грн. * 1 шт | |
|
Нижній напрямний профіль Wing 77, L3200, алюміній, анодований (70985) | 2 811.63 грн. * 1 шт |
| Вартість набору: | 12 364.95 грн. |
12 364.95 грн.
-
+
Купити
Опис
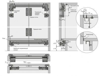
- В комплект входять всі необхідні елементи для однієї складної двері з двома стулками
- Внутрішня ширина між бічними панелями не повинна перевищувати 800 мм. Конструкція верхньої панелі повинна бути розрахована таким чином, щоб прогинання верхньої панелі під навантаженням складених дверей становило не більше 1,5 мм.
- 2 тандемні ходові елементи для швидкого монтажу
- 2 кронштейни для кріплення дверей до ходового елемента з регулюванням по висоті +/–5 мм
- 2 напрямні елементи
- 4 середні петлі
- 4 міждверні упори
- 4 упори
- 4 амортизатори (для амортизації торкання корпусу дверима), для розміщення вгорі і внизу кожної стулки
- Кріплення
- Профілі напрямні замовляються окремо
Характеристики
Відгуки




